Kaufmannshaus in Köln
<< zurück

Typ: Verwaltungsgebäude
Bauwerk: Kaufmannshaus in Köln
Ort: Köln
Jahr(e): 1922
Entwurf / Ausführung
Wettbewerbsbeitrag
Literatur / Quellen
Historisches Archiv der Stadt Köln, Best_902_185_1_Kaufmannshaus; DBz, 56. Jg., Nr. 6, 21.1.1922, S. 36; Nr. 49, 21.6.1922, S. 304; Nr. 61, 2.8.1922, S. 364; Ritter, Hubert: Der Wettbewerb für Entwürfe zu dem Kaufmannshaus in Köln, in: ZdB, 42. Jg., 14.10.1922, H. 83, S. 509–512; Elsaesser 1933.1, S. 301; Schmidt 1998, S. 132; Hagspiel, Wolfgang: Köln und seine jüdischen Architekten, Köln 2010, S. 70.
Bildnachweis
Hauptabbildung, Abb. 01–02: Elsaesser 1933.1, S. 301
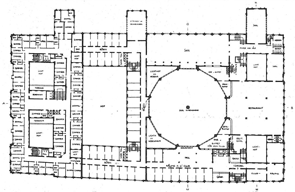
Das Kaufmannshaus sollte mit einer Grundfläche von 9.000 qm, davon 2.000 qm für einen Börsensaal, zwischen dem Domchor und dem Rhein an der Hohenzollernbrücke bzw. Hauptbahnhof entstehen. Zurückgehend auf Vorentwürfe von Fritz Schumacher wurde in der Ausschreibung besonderen Wert darauf gelegt, wie sich die Gebäudemasse im Stadtbild einfügen würde. Zur Wettbewerbsjury gehörten u. a. Schumacher, Theodor Fischer, Konrad Adenauer, Richard von Schnitzler, Josef Hoffmann, Hermann Muthesius. Die von auswärts eingeladenen Architekten waren: German Bestelmeyer, Paul Bonatz, Wilhelm Kreis, Bruno Paul, Hans Poelzig. ME bekam als Kölner Architekt eine Aufforderung zur Teilnahme. Einsendeschluss war der 10.05.1922. Das Preisgericht trat am 12/13.06.1922 zusammen. Aus 52 Arbeiten wurde ME – es gab nur einen ersten, zweiten und dritten Preis – für den ersten von drei Ankäufen vorgesehen. Von seinem Entwurf (Kennwort „Maßstab“) sind nur die Zeichnung des Börsensaals und die Grundrisse bekannt. Ein angekündigter engerer Wettbewerb zwischen den ersten sechs Platzierten fand nicht statt.
<< zurück
